

負壓吸送泵介紹
江蘇國耀機械有限公司生產的負壓吸送泵和吸送式氣力輸送設備裝置系統以獨特的耐磨件結構、材料、延長了吸送泵的使用壽命,利用羅茨真空泵產生的真空負壓作為輸送動力,將物料吸入輸送管道,利用料氣分離器將料氣分離,分離后物料在重力作用下,用電動鎖氣閥將物料排入受料倉內,設備安全運行,減少安全事故的發生同時降低企業的運行成本。負壓氣力輸送可根據用戶的需求進行設計,它的另 一個成型設備為卸船機、負壓氣力輸送-卸船機、碼頭負壓吸泵。
負壓氣力輸送系統(也稱負壓風送系統或負壓風運輸送系統)是高壓離心風機(或羅茨真空泵)產生的真空將散裝粉粒體物料用負壓氣流吸送到指定的容器(料倉),負壓吸送式氣力輸送裝置為核心組成的真空負壓收集系統,特別適用于短距離、物料溫度高、多點卸料的系統中。
散裝物料抽吸機由吸嘴、液壓吸臂、分離卸料裝置、羅茨鼓風機(真空泵)、電控系統等組成。可直接或通過輸送機械將物料送入散裝物料庫(倉)。散裝物料氣力輸送系統由負壓氣力輸送設備(吸嘴、液壓吸臂、分離裝置、羅茨鼓風機或真空泵)和正壓氣力輸送設備(倉式泵、組合泵、空氣壓縮機)以及電控系統組成。
負壓吸送式氣力輸送原理
負壓吸送式氣力輸送的流化倉是利用空氣使粉煤灰顆粒能夠充分地形成流態化狀態,從而使粉煤灰能夠順利地進入負壓吸灰正壓輸送管道。負壓吸灰流化倉內部是由兩塊多孔薄鋼板組成的,在上下多孔板之間夾有透氣層。整個流化倉內部的多孔板按一定斜度(4%-10%)布置。粉煤灰由分離器進入組合泵,由組合泵進入流化倉,加料設備加入上殼體的加料口的透氣層上。空氣由流化倉進入入下殼體,并沿流化倉透過透氣層,使粉煤灰流態化。進入輸送機械送出或進入正壓輸送設備內,由空氣壓縮機或羅茨風機產生的正壓,經過送料管道,將物料送入散裝物料庫(倉)。而清潔的空氣則由分離器上部排出經排風管道,從羅茨鼓風機(真空泵)排氣口排入大氣。
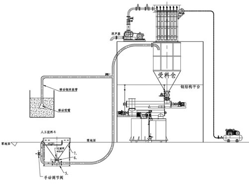
吸送式氣力輸送設備組成
負壓吸送裝置的主要組成部件為分離器,吸嘴(分固定式吸嘴和可移動式吸嘴),卸料器,真空泵,閥門及管件,控制系統等,適用于粉狀物料的中短距離輸送。由于輸送過程全部是在密閉的負壓管道中完成,所以在輸送線路上不會產生任何泄漏和污染,尤其適用于有嚴格泄漏污染要求的有害物質的輸送。輸送系統既可以單點供料,也可以多點供料,工藝布置靈活方便。
負壓吸送式氣力輸送裝置系統優勢
輸送管道中壓力低于環境壓力,粉塵不向外泄漏,是輸送有毒性物料的選擇,常用于卸船、真空上料、清潔等應用。適合多點到一點的輸送。輸送線路為負壓管路狀態,輸送過程中無泄漏,無污染;輸送狀態為均勻連續,輸送量可以調節;氣源裝置采用干式負壓氣源,簡單可靠;分離裝置采用高效過濾材料和脈沖噴吹,結構緊湊,分離效率高;吸嘴裝置可根據不同的應用場合和工藝要求進行專門設計;輸送系統的設備配置簡單,系統投資小;系統維護量低,檢修方便。
負壓吸送分類
1、負壓抽吸直接裝車式;
2、負壓抽吸機械輸送式;
3、負壓混合氣力輸送式。